
Администрация Советского района Минска выносит на общественное обсуждение проект возведения «здания специализированного транспорта». Под этим названием кроется проект переделки территории в районе улиц Кульман, Кропоткина и Карастояновой.
Ранее здесь работала автостанция «Кульман», где разворачивались несколько маршрутов автобусов.

Проектной документацией предусмотрено реконструкция разворотного кольца, примыкающих дорог и инженерной инфраструктуры, снос диспетчерской станции и строительство новой автостанции.
Сейчас, пишет Realt, здание бывшей автостанции занимает ветеринарная клиника, кофейня и другие бизнесы. По планам градостроителей, в будущем из-за продления улицы Карастояновой в Северный Берег именно сюда должна переехать диспетчерская станция «Карастояновой».
Но называться она будет, согласно проекту, ДС «Кульман».



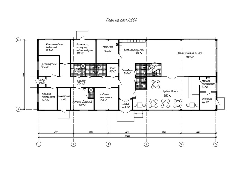
Несмотря на то, что на рендерах здание подписано как диспетчерская станция, ее все же можно назвать полноценной автостанцией, потому что в ее составе будут помещения не только для транспортников (комната контролеров, комната отдыха водителей, медпункт, билетная касса), но и зал ожидания площадью 70 кв.м. на 30 мест, и буфет на 20 мест (59 кв.м.).

Общественное обсуждение проводится в период с 17 ноября 2025 г. по 1 декабря 2025 г.
С экспозицией проекта можно ознакомиться ежедневно (кроме воскресенья) с 9-00 до 20-00, суббота с 9.00 до 13.00, в период с 17 ноября 2025 г. по 1 декабря 2025 г. в фойе здания администрации Советского района по адресу: г.Минск, ул. Дорошевича, 8 и на официальном сайте администрации sov.minsk.gov.by в разделе «общественные обсуждения».
- Турфирмы Минска выбирайте в каталоге Blizko.by
Рекомендуем вам:
- Дачный сезон открыт. Рассказываем, что важно успеть сделать и что купить для комфортного лета за городом в Беларуси
- Мозг — тоже мышца. Поговорили с минским тренером нейрофитнеса о преимуществах «умных тренировок»
