
В квартале Зеленая Гавань под Минском начали продажу квартир в доме под индексом 7.13, подметил «Колодищи Инфо». Это так называемый «ситихаус» (иными словами, обычный многоквартирный дом) на 3 подъезда высотой в 6-8 этажей в общей сложности на 104 квартиры.
У квартир на первом этаже будут собственные террасы: четыре выходят во внутренний двор и занимают от 19,5 до 20,7 кв.м, еще две площадью 20,7 и 23,2 «квадрата» откроют вид на зеленый коридор.
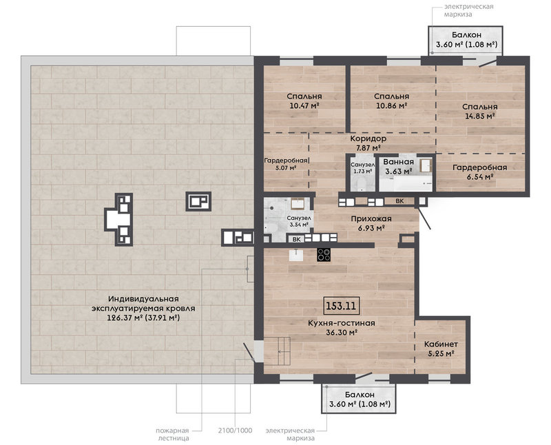
На последнем этаже третьей секции расположена эксклюзивная 4-комнатная квартира №102 площадью 153 кв.м. — с выходом на крышу и собственной 126-метровой террасой. То есть, это примерно как четыре стандартные «однушки» в панельном доме от МАПИД.

На рендерах изображены диваны, столы и стулья, подвесные кресла, проектор, детский вигвам, телескоп и все прочее, что особенно хорошо укрывается снегопадом урагана Улли. Кстати, на одном из рендеров дверь нарисовали совсем не в том месте, где она изображена на проекте квартиры. Согласно этому плану, выход на крышу — через туалет.


Квартиры в этом доме уже в продаже, хотя дом еще не построен (его обещают сдать во втором квартале 2027 года). Цены начинаются от 1.480 долларов по курсу. Самая доступная квартира обойдется в 76.968 долларов в пересчете.
А вот эта самая «четырешка» с огроменной террасой обойдется в 275.598 долларов, или по 1.800 долларов за один квадратный метр.
- Агентства недвижимости Минска в каталоге Blizko.by
Рекомендуем вам: Будьте в курсе последних новостей - подпишитесь на Blizko:
